- Главная
- Бани под ключ
- Ц-112 Баня в минималистичном стиле 9*11 м.
СТОИМОСТЬ СТРОИТЕЛЬСТВА «КОРОБКИ» = 136 000 бел рублей
В стоимость строительства входит: АР (архитектурный проект) КР (фундамент, стены, кровля) фундамент (геология) , ввод канализации, водопровод (гильза) , электроэнергия (гильза) , наружные стены из газосиликатного блока (300мм) внутренние и перегородки (120мм) , крыша метало- черепица , фальцевая кровля «Клик-фальц» толщина металла 0,5 мм , межэтажное перекрытие деревянные балки 200мм с утеплением 200 мм .Утепление фасада 50 мм.
СТОИМОСТЬ СТРОИТЕЛЬСТВА С ОТДЕЛКОЙ ПОД КЛЮЧ = 355 000 бел рублей
Гарантия на выполненные работы 48 месяцев.
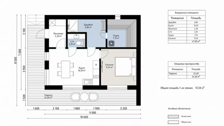
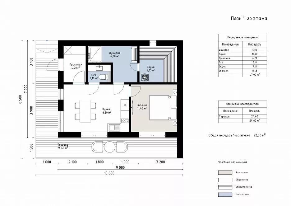
1 сан-узел
комната отдыха, душевая, кладовая ,парилка.
1 сан-узел
душевая, сан-узел, кухня, подсобное помещение, большая зона отдыха
1 сан-узел
комната отдыха, парная.
1 сан-узел
большая застекленная веранда, комната отдыха






