- Главная
- Бани под ключ
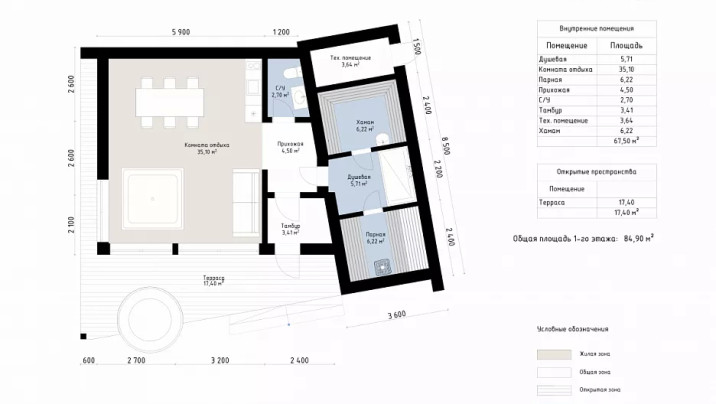
- НОВИНКА. НС-64. Банный комплекс с террасой 11*9 метров.
Новинка 2025 года. Строительство банного комплекса с уникальной архитектурой и террасой в современном стиле, которая привлекает внимание и гармонично вписывается в современный ландшафт.
СТОИМОСТЬ СТРОИТЕЛЬСТВА «КОРОБКИ» = 135 000 бел рублей
В стоимость строительства входит: АР (архитектурный проект) КР (фундамент, стены, кровля) фундамент (геология) , ввод и разводка канализации, бетонные черновые полы 100 мм, водопровод (гильза) , электроэнергия (гильза) , наружные стены из газосиликатного блока (300мм) внутренние и перегородки (120мм) , крыша односкатная , метало- черепица толщина металла 0,5 мм , межэтажное перекрытие деревянные балки 200мм с утеплением 200 мм. Утепление фасада 50 мм с подготовкой к отделке.
СТОИМОСТЬ СТРОИТЕЛЬСТВА ПОД ОТДЕЛКУ «ТЕПЛЫЙ КОНТУР» = 235 000 бел рублей
- Архитектурный проект. КР (фундамент, стены, кровля)
- Строительство фундамента (геология)
- Разводка канализации по всей бане, бетонные черновые полы
- Гильзы для водопровода и электричества
- Наружные стены газосиликатные блоки 300 мм, перегородки 120 мм
- Крыша металлочерепица «Монтерей» 0.5 мм
- Балки перекрытия 200 мм с утеплением 200 мм
- Утепление фасада 50 мм с с чистовой отделкой фасада согласно проекта
- Все окна согласно проекта (ламинация в цвет ) профиль 70 мм
- Оштукатуренные внутренние стены и перегородки
- Чистовая стяжка пола
- Разводка электричества всего дома ( розетки, выключатели, осветительные приборы-без подключения )
- Разводка воды, отопления (теплые полы, радиаторы- без подключения сан тех-посуды
СТОИМОСТЬ СТРОИТЕЛЬСТВА С ОТДЕЛКОЙ ПОД КЛЮЧ = 303000 бел руб
Гарантия на выполненные работы 48 месяцев
1 сан-узел
комната отдыха, душевая, кладовая ,парилка.
1 сан-узел
душевая, сан-узел, кухня, подсобное помещение, большая зона отдыха
1 сан-узел
комната отдыха, парная.
1 сан-узел
большая застекленная веранда, комната отдыха










