- Главная
- Бани под ключ
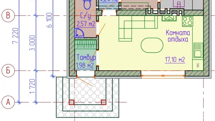
- Б-44 .Банный комплекс . 7.6*6.10 метров
СТОИМОСТЬ СТРОИТЕЛЬСТВА «КОРОБКИ» = 55 000 бел рублей
В стоимость строительства входит: АР (архитектурный проект) КР (фундамент, стены, кровля) фундамент (геология) , ввод канализации, водопровод (гильза) , электроэнергия (гильза) , наружные стены из газосиликатного блока (300мм) внутренние и перегородки (120мм) , крыша метало- черепица толщина металла 0,5 мм , межэтажное перекрытие деревянные балки 200мм .
СТОИМОСТЬ СТРОИТЕЛЬСТВА ПОД ОТДЕЛКУ «ТЕПЛЫЙ КОНТУР» = 135 000 бел рублей
- Архитектурный проект. КР (фундамент, стены, кровля)
- Строительство фундамента (геология)
- Разводка канализации по всей бане, бетонные черновые полы
- Гильзы для водопровода и электричества
- Наружные стены газосиликатные блоки 300 мм, перегородки 120 мм
- Крыша металлочерепица «Монтерей» 0.5 мм
- Балки перекрытия 200 мм с утеплением 200 мм
- Отделка фасада сайдинг с утеплением 50 мм , согласно проекта
- Водосточная система, отделка свесов крыши.
- Все окна согласно проекта профиль 70 мм
- Оштукатуренные внутренние стены и перегородки
- Чистовая стяжка пола
- Разводка электричества всего дома ( розетки, выключатели, осветительные приборы-без подключения )
- Разводка воды, отопления (теплые полы, радиаторы- без подключения сан тех-посуды
СТОИМОСТЬ СТРОИТЕЛЬСТВА С ОТДЕЛКОЙ ПОД КЛЮЧ = 185 000 бел рублей
Гарантия на выполненные работы 48 месяцев.
1 сан-узел
комната отдыха, душевая, кладовая ,парилка.
1 сан-узел
душевая, сан-узел, кухня, подсобное помещение, большая зона отдыха
1 сан-узел
комната отдыха, парная.
1 сан-узел
большая застекленная веранда, комната отдыха






