- Главная
- Бани под ключ
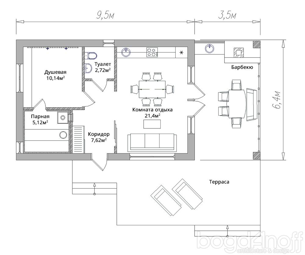
- Б-14 . ХИТ Строительства Банный комплекс р13м*6,4 метров
СТОИМОСТЬ СТРОИТЕЛЬСТВА «КОРОБКИ» = 113 000 бел рублей
В стоимость строительства входит: АР (архитектурный проект) КР (фундамент, стены, кровля) фундамент (геология) , ввод и разводка канализации, бетонные черновые полы 100 мм, водопровод (гильза) , электроэнергия (гильза) , наружные стены из газосиликатного блока (300мм) внутренние и перегородки (120мм) , Крыша металлочерепица «Монтерей» 0,5 мм. Балки перекрытия 200 мм с утеплением 200 мм
СТОИМОСТЬ СТРОИТЕЛЬСТВА ПОД ОТДЕЛКУ «ТЕПЛЫЙ КОНТУР» = 171 000 бел рублей
- Архитектурный проект. КР (фундамент, стены, кровля)
- Строительство фундамента (геология)
- Разводка канализации по всей бане, бетонные черновые полы
- Гильзы для водопровода и электричества
- Наружные стены газосиликатные блоки 300 мм, перегородки 120 мм
- Крыша металлочерепица «Монтерей» 0,5 мм. Балки перекрытия 200 мм с утеплением 200 мм
- Утепление фасада 50 мм с подготовкой к отделке
- Все окна согласно проекта (белые) профиль 70 мм
- Оштукатуренные внутренние стены и перегородки
- Чистовая стяжка пола
- Разводка электричества всего дома ( розетки, выключатели, осветительные приборы-без подключения )
- Разводка воды, отопления (теплые полы, радиаторы- без подключения сан тех-посуды
СТОИМОСТЬ СТРОИТЕЛЬСТВА С ОТДЕЛКОЙ ПОД КЛЮЧ = 245 000 бел рублей
Гарантия на выполненные работы 48 месяцев.
1 сан-узел
комната отдыха, душевая, кладовая ,парилка.
1 сан-узел
душевая, сан-узел, кухня, подсобное помещение, большая зона отдыха
1 сан-узел
комната отдыха, парная.
1 сан-узел
большая застекленная веранда, комната отдыха








