- Главная
- Коттеджи под ключ
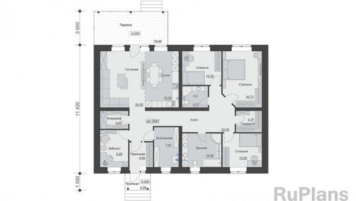
- РМ-376 Дом с террасой и тремя спальнями 15,9 x 15,5 м
В стоимость строительства входит: фундамент(ростверк) , ввод и разводка канализации, ввод (гильзы) водопровод -электроэнергия, бетонные черновые полы100мм, наружные стены из газосиликатного блока (300мм) , внутренние перегородки (120мм) , крыша, метало- черепица толщина металла 0,5 мм , межэтажное перекрытие деревянные балки 200мм , Оштукатуренные внутренние стены и перегородки.
Гарантия на выполненные работы 48 месяцев . Предлагаем строительство с отделкой под ключ.
1 сан-узел
2 жилых комнаты
2 сан- узла
4 спальни, большая гостиная
2 сан- узел
3 спальни+ гостиная
2 сан-узла
4 спальни+ большая гостиная.








