- Главная
- Коттеджи под ключ
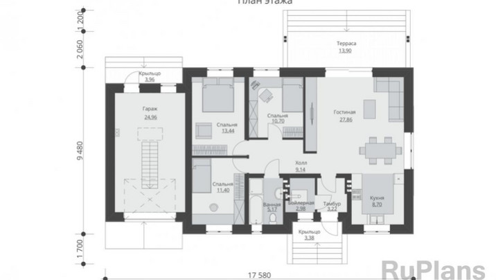
- РН-249 Одноэтажный дом с гаражом 11,5 x 17,6 м.
В стоимость строительства входит: АР (архитектурный проект) , фундамент(ростверк -геология) , ввод и разводка канализации, ввод (гильзы) водопровод -электроэнергия, бетонные черновые полы100мм, наружные стены из газосиликатного блока (300мм) , внутренние перегородки (120мм) , крыша метало- черепица толщина металла 0,5 мм , межэтажное перекрытие деревянные балки 200мм с теплошумоизоляцией в межбалочном пространстве 200 мм, Оштукатуренные внутренние стены и перегородки.
Гарантия на выполненные работы 48 месяцев . Предлагаем строительство с отделкой под ключ.
1 сан-узел
2 жилых комнаты
2 сан- узла
4 спальни, большая гостиная
2 сан- узел
3 спальни+ гостиная
2 сан-узла
4 спальни+ большая гостиная.








