- Главная
- Коттеджи под ключ
- ПВ-01 НОВИНКА . Комфортабельный дом с мансардой 10.3*9 метров.
Строительство комфортабельного и компактного дома для круглогодичного проживания . Высота здания 8.14 метров, высота аттиковой стены 0.80 см,
В стоимость строительства входит: АР (архитектурный проект) , фундамент, ввод и разводка канализации, ввод (гильзы) водопровод -электроэнергия, бетонные черновые полы100мм, наружные стены из газосиликатного блока (300мм) , внутренние перегородки (120мм) , крыша, метало- черепица толщина металла 0,5 мм , межэтажное перекрытие деревянные балки 200мм с утеплением 200 мм, утепление фасада 50 мм и подготовка к отделке.
Гарантия на выполненные работы 48 месяцев. Предлагаем строительство с отделкой под ключ.
При замене балок перекрытия на железобетонные плиты перекрытия стоимость изменится.
1 сан-узел
2 жилых комнаты
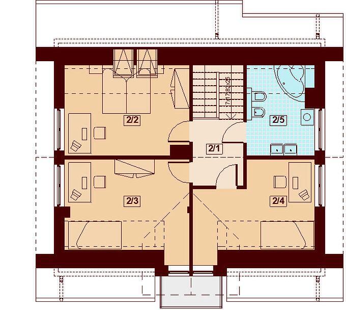
2 сан-узла
3 спальни, большая гостиная
2 сан- узла
4 спальни, большая гостиная
2 сан- узел
3 спальни+ гостиная











