- Главная
- Коттеджи под ключ
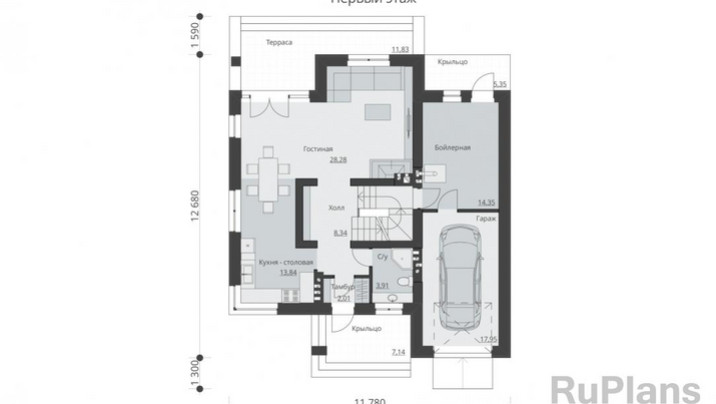
- РН-244 Дом с тремя спальнями и гаражом 12,7 x 11,8 м.
В стоимость строительства входит: АР (архитектурный проект) ,конструктив фундамент(ростверк -геология)+стены+кровля , ввод и разводка канализации, ввод (гильзы) водопровод -электроэнергия, бетонные черновые полы100мм, наружные стены из газосиликатного блока (300мм) , внутренние перегородки (120мм) , перегородки второго этажа каркасные 100 мм, крыша металлочерепица «Монтерей» толщина металла 0,5 мм , межэтажное перекрытие деревянные балки 200мм с теплошумоизоляцией в межбалочном пространстве. Оштукатуренные внутренние стены и перегородки.
Гарантия на выполненные работы 48 месяцев . Предлагаем строительство с отделкой под ключ
1 сан-узел
2 жилых комнаты
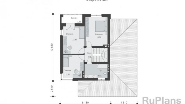
2 сан- узла
4 спальни, большая гостиная
2 сан- узел
3 спальни+ гостиная
2 сан-узла
4 спальни+ большая гостиная.









