- Главная
- Коттеджи под ключ
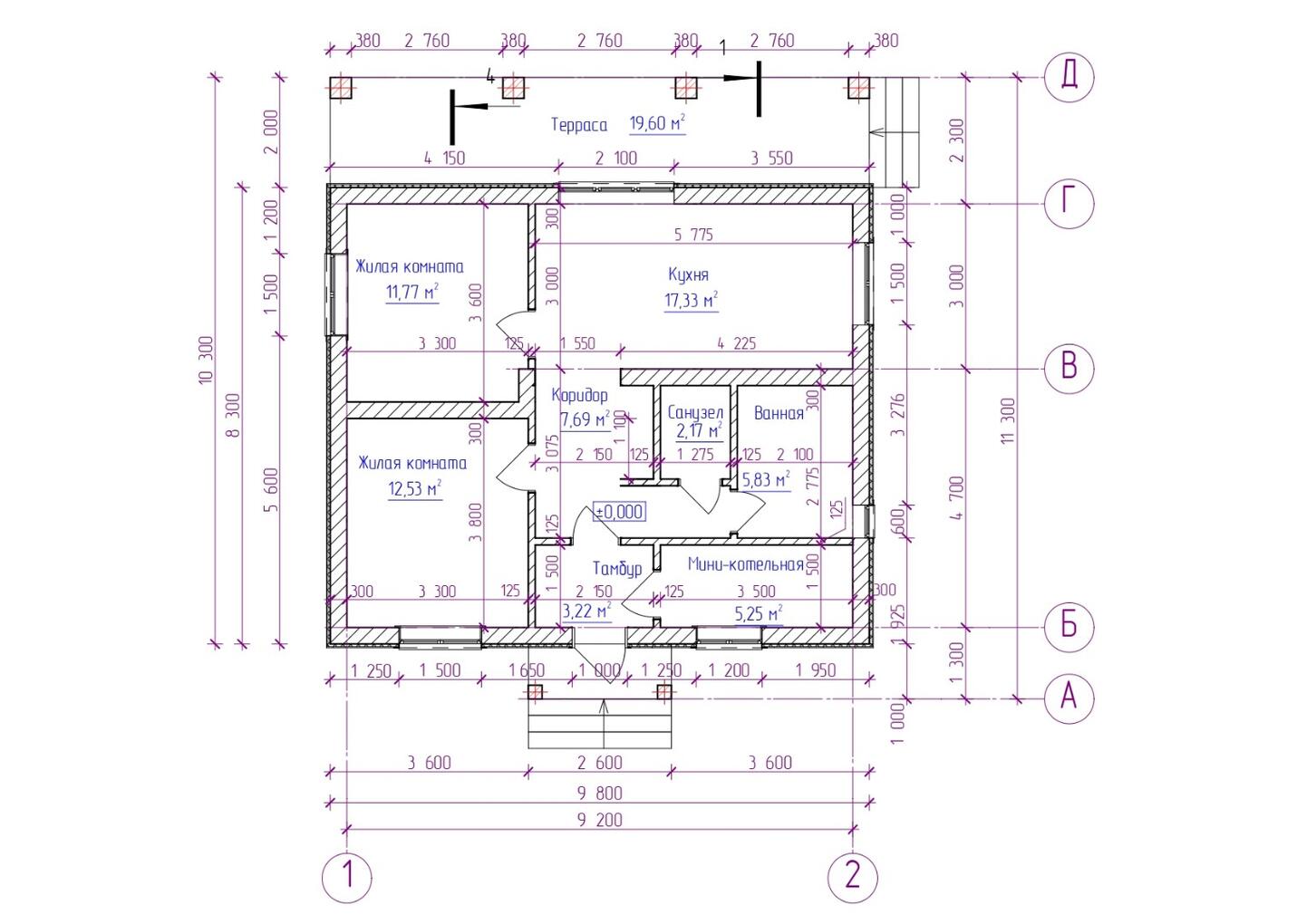
- АКЦИЯ ДК -01 Дом с террасой 11.8* 8.30 метров
Индивидуальный проект загородного компактного дома для круглогодичного проживания . Этот проект разработал наш архитектор и этот проект по праву считается одним из самых удачных и востребованных домов для строительства.
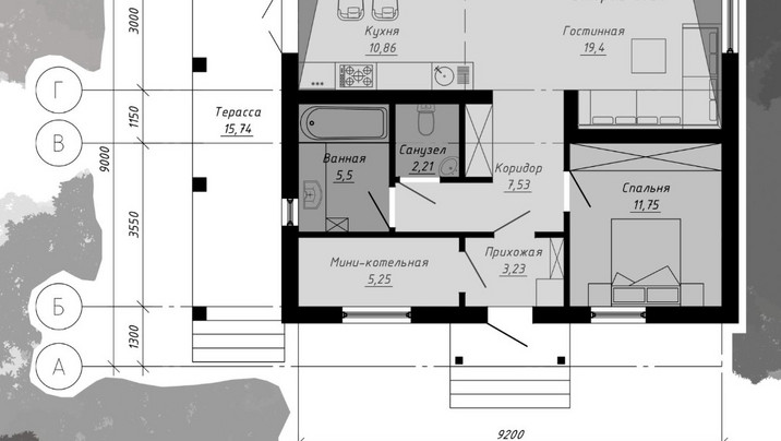
На сегодняшний день идет строительство пяти таких домов по всей Белоруссии из них два дома по Минскому району . В одном из проектов по желанию клиента вместо одной комнаты и гостиной мы заменили на две жилых комнаты и кухню при этом стоимость не изменилась.
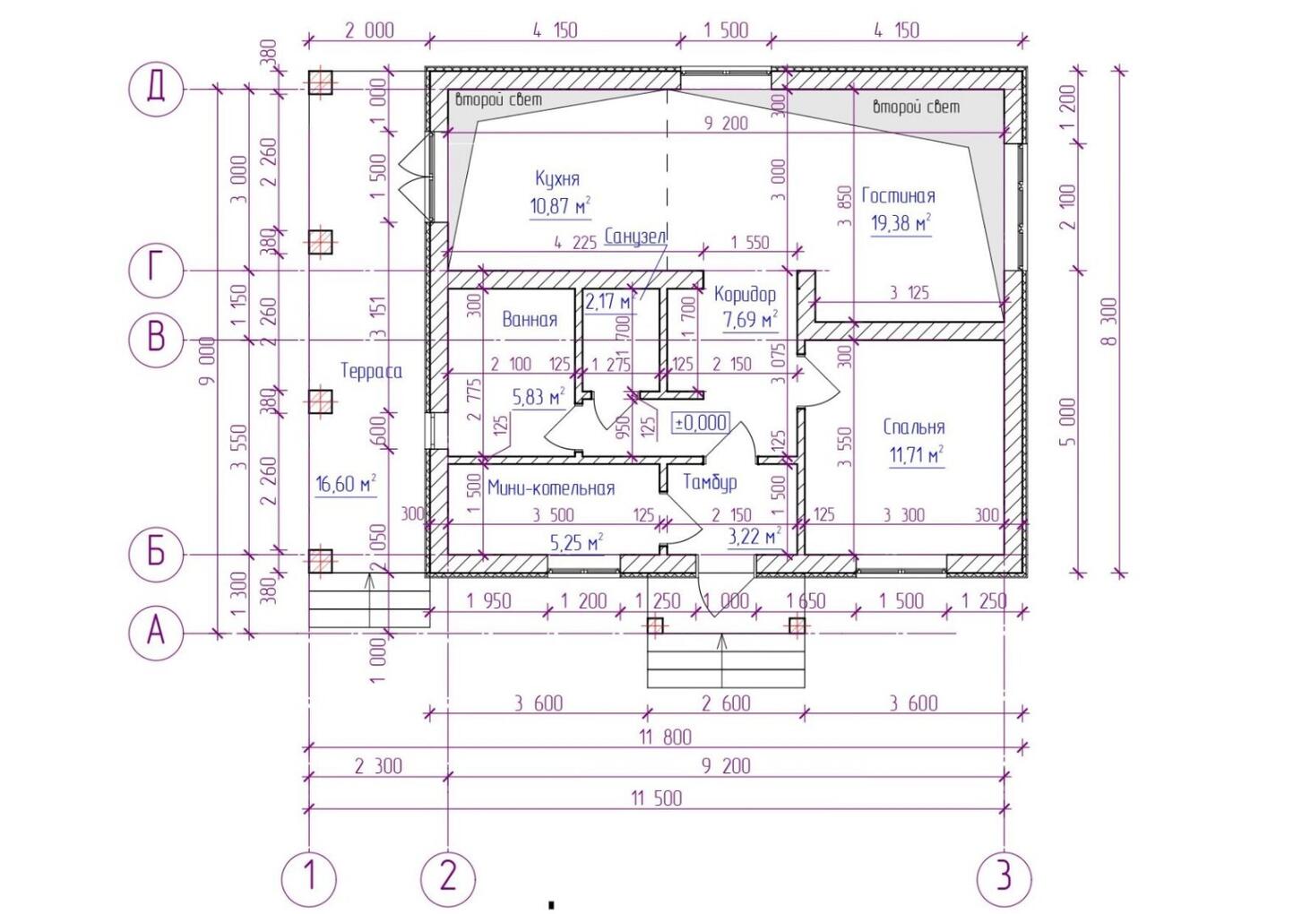
Также в другом варианте по желанию клиента мы запроектировали подвал по всему периметру здания но в этом варианте стоимость изменяется.
Если вас заинтересовал данный проект мы предлагаем приехать на обьект и все увидеть своими глазами весь процесс строительства .
В стоимость строительства входит: АР (архитектурный проект) , фундамент, ввод и разводка канализации, ввод (гильзы) водопровод -электроэнергия, бетонные черновые полы100мм, наружные стены из газосиликатного блока (300мм) , внутренние перегородки (120мм) , деревянные столбы, крыша, метало- черепица толщина металла 0,5 мм , межэтажное перекрытие деревянные балки 200мм с утеплением
Стоимость строительства коробки = 98 000 бел рублей
Стоимость строительства с отделкой под ключ = 198 000 бел рублей
ПРИ ЗАКЛЮЧЕНИИ ДОГОВОРА ДО 29.12.2025 ГОДА -ОСТЕКЛЕНИЕ ТЕРАССЫ БЕСПЛАТНО
В стоимость включено все кроме мебели Гарантия на выполненные работы 48 месяцев.
1 сан-узел
2 жилых комнаты
2 сан- узла
4 спальни, большая гостиная
2 сан- узел
3 спальни+ гостиная
2 сан-узла
4 спальни+ большая гостиная.






















