- Главная
- Услуги
- Проектирование домов, бань и хоз-построек
- Архитектурное проектирование частных домов и других капитальных строений
ООО «Строй для всех» выполняем разработку разделов проектной документации объектов строительства 5 класса сложности. Строительство объектов пятого класса сложности.
Оказании инженерных услуг при осуществлении деятельности в области строительства объектов 5 класса сложности.
Форма оплаты наличный и безналичный расчет
Прохождение строительной экспертизы
Регистрация объектов
Наше архитектурное бюро предоставляет услуги в архитектурном проектировании разного вида сложности:
- индивидуальных загородных жилых домов,
- хозяйственных построек,
- бань, спа-комплексов
- уже построенных домов
- проекты реконструкции
- проекты перепланировки квартир, офисов итд
- 3D визуализация интерьеров и фасадов зданий.
Заказывая проект у нас вы получаете комплект чертежей, который разработан профессиональным архитектором, конструкторам и инженером нашей компании в соответствии со СНиПами, ГОСТами и строительными правилами. Проекты полностью подготовлены для строительства домов с их последующей регистрацией в гос. органах, а также для получения кредитов в банке на строительство дома.
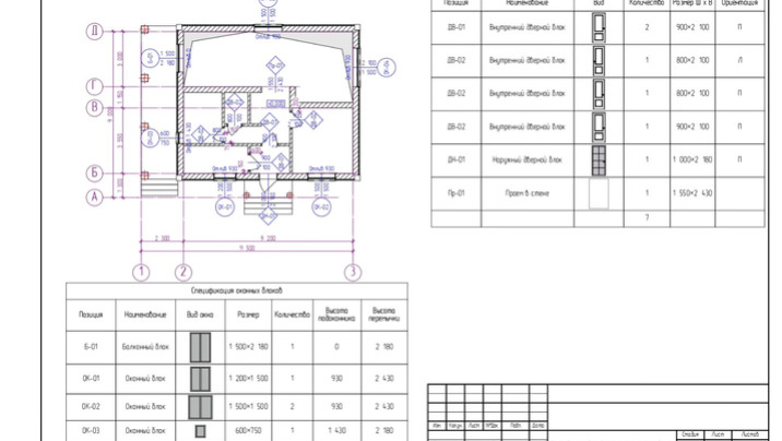
- Общие характеристики дома
- Цветные фасады
- Черно-белые фасады дома с отметками высот
- Чертежи планов этажей дома
- Разрезы дома в двух ракурсах
- Ведомость оконных и дверных проемов
- границы земельного участка — четкое определение территории строительства или эксплуатации
- расположение зданий и сооружений — обозначение жилых, коммерческих или промышленных объектов, их высотность, площадь застройки и расстояния между ними
- инженерные сети — планировка канализации, водопровода, электрических и газовых коммуникаций;
- транспортные и пешеходные пути — дороги, парковки, подъездные пути и тротуары;
- озеленение и благоустройство — зеленые зоны, парки, детские и спортивные площадки, ландшафтные решения;
- особенности рельефа и природные объекты — водоемы, склоны, лесные массивы, ограничения по строительству.
- Исследование рельефа и геоморфологических структур участка земли
- Проверка состояния почвы, изучение ее основных свойств
- Исследование инженерно-геологических процессов и прогнозирование возможных изменений
- Изучение состава почвы, глубины залегания грунтовых вод, состояние склонов и притоков воды
- Исследование фильтрационных свойств.
Стоимость геологии участка от 700 бел рублей и зависит от:
- Количества пробуренных скважин
- Площадь застройки
- Территориальное расположение
- Топографическая съемка представляет собой комплекс геодезических работ, направленных на детальное изучение территории. Она позволяет создать точный план местности, отображающий рельеф, инфраструктуру, подземные коммуникации и иные элементы.
- Этот процесс включает как полевые исследования, так и камеральную обработку данных, результатом которой становится инженерно-топографический план.
Стоимость геодезической съемки от 550 бел рублей — зависит от площади участка, удаленности и сложности работ.

Разработка проекта благоустройства территории
- Подготовительный этап
- Проводится сбор информации об участке: визуальная оценка фронта работ, геодезические изыскания участка, геологические изыскания грунта. Анализируем состояние территории.
- Этап завершается созданием технического задания.
- Разработка концепта и эскизного проекта ландшафта
- После обсуждения с заказчиком видения проекта дизайнер-архитектор начинает разработку концепции. Первоначальные версии проекта предоставляются эскизами, затем согласованный вариант документируется в формате цветных планов и 3D –визуализаций
- Документация эскизного проекта содержит: ситуационный план, схема функционального зонирования, план благоустройства, разбивочный план, план покрытий, схемы озеленения участка, план освещения, пояснительную записку.
- Подготовка рабочего проекта благоустройства
- На данном этапе разрабатывается подробная документация, углубленно прорабатываются детали, уточняются используемые материалы, спецификация применяемого оборудования. Составляются планы, конструктивные и инженерные решения.
- Итоговая документация позволит полноценно реализовать проект на участке
Стоимость ландшафтного проекта благоустройства территории от 250 бел рублей за 1 сотку.
Предварительный созвон-консультация
Встреча в офисе или на объекте
Обсуждение задач. Заключение договора
Проектирование. Согласование
Передача проекта заказчику
Сметная документация
Генеральный план
Согласования






