- Главная
- Услуги
- Проектирование домов, бань и хоз-построек
- Проекты бань, спа-комплексов, хоз-построек
Профессиональное проектирований банных комплексов, СПА-комплексов любой сложности .
Профессиональное строительство банных комплексов, СПА-комплексов любой сложности по всей территории Республике Беларусь.
Для чего нужен архитектурный проект
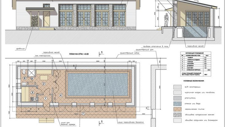
Объемный архитектурный проект - это полное детализированное представление о вашей будущей бане. Он включает в себя не только объемно-планировочные решения и разработку конструктивных узлов, но и подробную спецификацию строительных и отделочных материалов. Вы будете точно знать окон и дверей, погонных метров плинтуса, квадратных метров плитки для моечной и т.д.
С такой подробной спецификацией вам будет несложно провести анализ рынка строительных и отделочных материалов, сравнить цены у разных поставщиков, выбрать оптимальные варианты и точно рассчитать бюджет строительства. Строительные бригады не смогут называть вам цифры за покупку материалов «с потолка», пользуясь отсутствием у вас точной информации.
Зачастую строительные бригады строят бани не так, как нужно вам, а так, как проще, удобнее и привычнее для них. Детализованный архитектурный проект исключает любую подобную «самодеятельность». Если вам говорят, что сделать что-то невозможно, и лучше сделать по-другому, это свидетельствует только о некомпетентности исполнителей. Потому что, как говорилось выше, все проекты прошли испытание практикой.
Мы предлагаем вам сделать индивидуальный проект бани, бани с бассейном или СПА-комплекс и осуществлять технический контроль за правильность строительства и соблюдения всех норм.
Или наша организация сама построит банный комплекс -в таком случае вся архитектурно-планируемые решения включая 3D визуализацию будут для вас бесплатно
Предварительный созвон-консультация
Встреча в офисе или на объекте
Обсуждение задач. Заключение договора
Проектирование. Согласование
Передача проекта заказчику
Сметная документация
Генеральный план
Согласования






